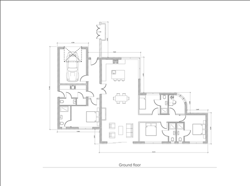
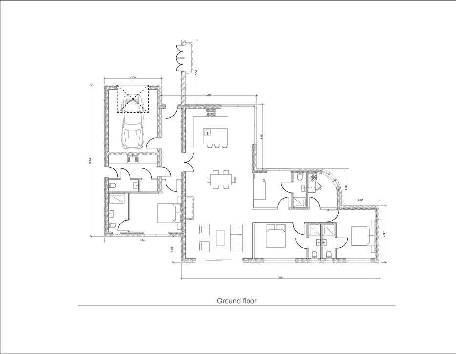
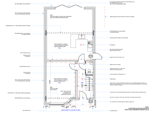
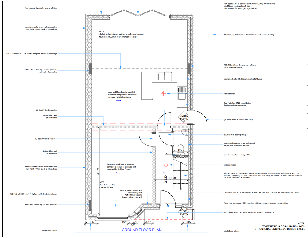
Coachouse Construction provide a one-stop shop for planning and design, from initial concept designs through to planning applications, construction drawings and steel calculations.
From our first meeting with you we can, along with our house planners, create draft conceptual designs to better visualise your proposal project, and when you're happy with the designs we can develop these to planning application plans and elevations in readiness for submission to your local council. We can also provide 3D CAD drawings at the design stage.
We can also advise you on whether or not your proposals will in fact need planning permission or if they could be considered to be 'permitted development' and not require it.
Once your planning application is approved we can then prepare the building regulations specifications and any structural designs/calculations as may be required, depending on your design to satisfy the Council/Approved Inspector.
We have a long and successful track record in creating imaginative, cost effecient schemes and in securing planning permissions in the North-west. Speak to us now to see how we can help you bring your property dreams to life.
I have found them to be entirely reliable and trustworthy. Coachouse Construction took a genuine interest in the work and used their experience and network of contacts for my benefit.
Geoffrey Horley
I honestly don’t believe there’s a problem Coachouse Construction couldn’t get over. Where others admit defeat, they carry on and get the job done.
Jason Whitehead
I have known Coachouse Construction since I initially engaged them on a landscaping job in 2001. They impressed me immediately with their creative ideas and determination to do a good job. They would always consult with us at every stage of the project and frequently suggested ways in which we could reduce costs.
Greg Barnes






